Villa Alani - Cape Coral / Florida
Villa Alani - Cape Coral / Florida

Welcher Grundriss?

Jeder Bauunternehmer hat gewisse eigene Hausgrundrisse, die er versucht an den Mann zu bringen. Uns hat aber keiner dieser Grundrisse zu 100% zugesagt. Immer gab es irgendeinen Kompromiss, den wir hätten eingehen müssen. Nach unseren Vorstellungen wollten wir ein Haus haben, welches sich mit den hohen Ansprüchen der europäischen Gäste größtmöglich deckt. By the way, uns geht es da auch nicht anders. Also, kamen Kompromisse nicht in Frage.

Damit blieb uns nichts anderes mehr übrig, als den Weg über einen kundenindividuellen Grundriss zu gehen. Dieser Schritt braucht mehr Zeit, diverse Emails hin und her und einige Skizzen, bis der Architekt in Cape Coral versteht, was man will bzw. was aufgrund der örtlichen Bauvorschriften zulässig ist. Auch diese Hürde kann man aber meistern.

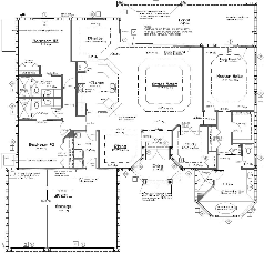
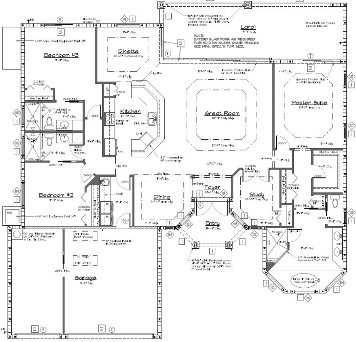
Für uns war von Anfang an klar, dass wir drei vollwertige Schlafzimmer haben wollten, so dass sechs reguläre Schlafplätze entstehen. Jedes der Schlafzimmer bekommt ein eigenes Badezimmer. Beim Master- und zweite Schlafzimmer sind die Bäder ausschließlich vom jeweiligen Raum zugänglich. Dies schafft eine private Atmosphäre, die gerade uns Europäern sehr wichtig ist. Das dritte Schlafzimmer ist vom Konzept so gedacht, dass man es für zwei Kinder verwenden kann. Das dazugehörige Badezimmer hat ebenfalls einen direkten Zugang, aber auch eine Tür zum normalen Wohnbereich. Die zusätzliche Zugänglichkeit von außen ist bei Gästen, die nicht zum Haus gehören ganz schön, weil so vermieden wird, dass sie durch das private Schlafzimmer gehen müssen. Das sind Probleme, wenn man sich über sowas einen Kopf macht....aber keiner hat gesagt, dass Bauen einfach sei :-)

Somit ist das Haus für 6 Personen konzipiert. Es wird aber für Notfälle auch noch die Möglichkeit geben, zwei Schlafplätze auf einer hochwertigen Ausziehcouch im separaten Büro herzurichten. Diese haben jedoch kein separates Badezimmer. Das soll aber auch nur eine Notlösung darstellen. Kinder sind z.B. bei sowas eigentlich immer sehr pflegeleicht.  

 

 

Grundriss Villa Alani

Kontakt und Reservierung

Villa Alani

1204 SE 29th St 

Cape Coral  FL 33914

 

Rufen Sie uns gerne an: +49 231 13035319

 

 

Oder nutzen Sie einfach unser Kontaktformular.

Druckversion | Sitemap
© Villa Alani